Novinky
1. října 2025
Nabízíme k pronájmu volné kancelářské prostory v nově zrekonstruované budově s přilehlým parkovištěm.
- 2.29 kancelář, výměra 15,15 m2
Možnost pronájmu zrekonstruovaných sklepních prostor, které nabízí využití
jako menší příruční sklady.
Nabídka platná od září 2024
O nás
Obchodně administrativní centrum v Jindřichově Hradci se nachází v místech bývalého výrobního areálu textilní továrny JITKA a.s., v místní části Otín.
Budova z výšky tvoří písmeno „L“, je rozdělena na třípodlažní čelní administrativní budovu a kolmo navazující jednopodlažní křídlo, původně kuchyně. Celý objekt je podsklepený. Dříve v těchto místech byly archivy, sklady a technologické zázemí.
Součástí areálu je i venkovní parkoviště. V bezprostřední blízkosti je autobusová zastávka MHD, takže do centra města se dostanete za cca10 minut. V docházkové vzdálenosti se nachází prodejna potravin.
Dle dokladů byl objekt postaven v roce 1953, v roce 1990 se provedla celková renovace kuchyně a po roce 2000 přístavba zubní ordinace.
2018
Na jaře 2018 byla dokončena další rekonstrukce, a to konkrétně zateplení celého objektu, výměna oken, výstavba moderního výtahu a vstupní haly s recepcí. V jednotlivých patrech je sociální zařízení a vybavené kuchyňky s lednicí. Internet a zabezpečení objektu kamerovým systémem je samozřejmostí.
V dnešních dnech dochází k pronajímání kanceláří ve 2.NP, které jsou kompletně připraveny k užívání.
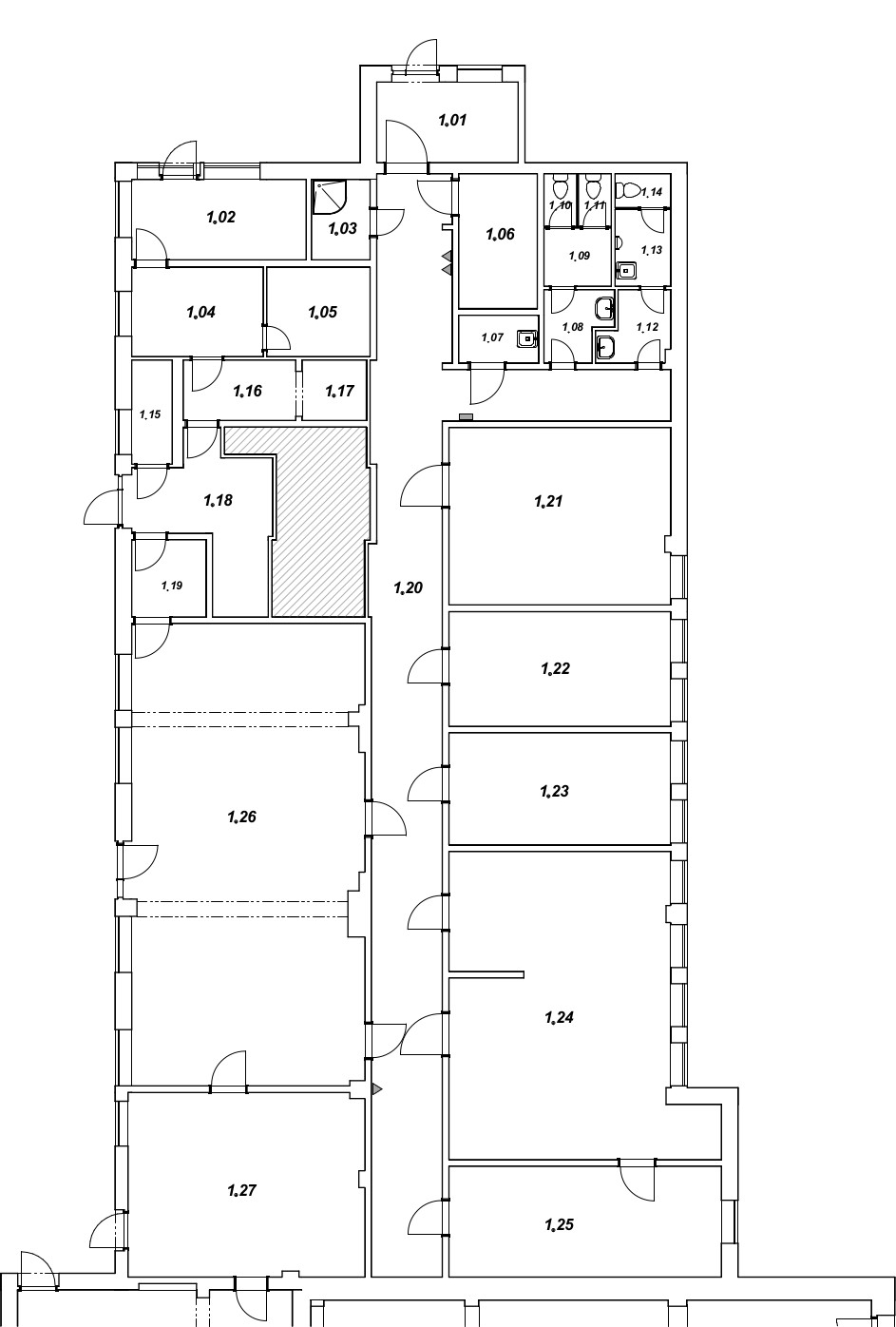
Nabídka prostor
| Č. | m2 | DOSTUPNOST |
|---|---|---|
| 1.01 | 8,4 | OBSAZENO |
| 1.02 | 10,02 | OBSAZENO |
| 1.03 | 3,35 | OBSAZENO |
| 1.04 | 8,35 | OBSAZENO |
| 1.05 | 6,57 | OBSAZENO |
| 1.06 | 7,56 | OBSAZENO |
| 1.07 | 2,71 | OBSAZENO |
| 1.08 | 3,09 | OBSAZENO |
| 1.09 | 2,79 | OBSAZENO |
| 1.10 | 1,22 | OBSAZENO |
| 1.11 | 1,23 | OBSAZENO |
| 1.12 | 3,25 | OBSAZENO |
| 1.13 | 3,03 | OBSAZENO |
| 1.14 | 1,33 | OBSAZENO |
| 1.15 | 3,00 | OBSAZENO |
| 1.16 | 4,83 | OBSAZENO |
| 1.17 | 2,75 | OBSAZENO |
| 1.18 | 11,72 | OBSAZENO |
| 1.19 | 4,08 | OBSAZENO |
| 1.20 | 64,73 | OBSAZENO |
| 1.21 | 28,06 | OBSAZENO |
| 1.22 | 18,12 | OBSAZENO |
| 1.23 | 17,7 | OBSAZENO |
| 1.24 | 50,67 | OBSAZENO |
| 1.25 | 21,55 | OBSAZENO |
| 1.26 | 76,31 | OBSAZENO |
| 1.27 | 31 | OBSAZENO |
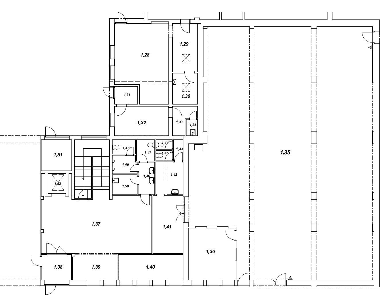
| Č. | m2 | DOSTUPNOST |
|---|---|---|
| 1.28 | 30,24 | OBSAZENO |
| 1.29 | 9,46 | OBSAZENO |
| 1.30 | 6,1 | OBSAZENO |
| 1.31 | 3,21 | OBSAZENO |
| 1.32 | 12,43 | OBSAZENO |
| 1.33 | 4,04 | OBSAZENO |
| 1.34 | 1,45 | OBSAZENO |
| 1.35 | 331,75 | OBSAZENO |
| 1.36 | 18,97 | OBSAZENO |
| 1.37 | 49,94 | VEŘEJNÉ |
| 1.38 | 6 | VEŘEJNÉ |
| 1.39 | 9,22 | VEŘEJNÉ |
| 1.40 | 12,89 | VEŘEJNÉ |
| 1.41 | 13,67 | OBSAZENO |
| 1.42 | 7 | OBSAZENO |
| 1.43 | 1,58 | OBSAZENO |
| 1.44 | 1,29 | OBSAZENO |
| 1.45 | 1,3 | OBSAZENO |
| 1.46 | 4,15 | VEŘEJNÉ |
| 1.47 | 3,04 | VEŘEJNÉ |
| 1.48 | 2,61 | VEŘEJNÉ |
| 1.49 | 3,49 | VEŘEJNÉ |
| 1.50 | 3,83 | VEŘEJNÉ |
| 1.51 | 7,42 | OBSAZENO |
| 1.52 | 3,2 | VEŘEJNÉ |
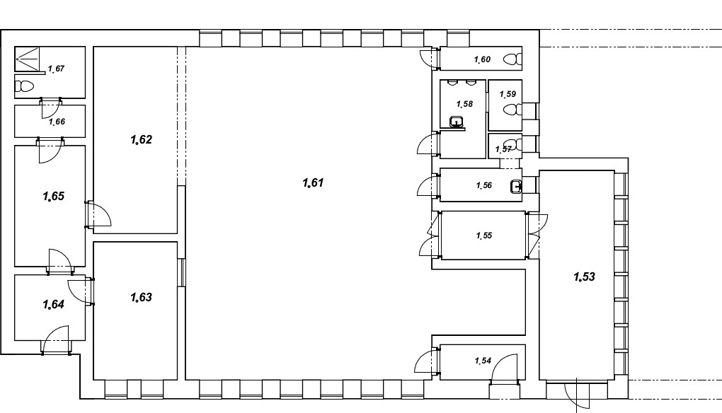
| Č. | m2 | DOSTUPNOST |
|---|---|---|
| 1.53 | 20,24 | OBSAZENO |
| 1.54 | 3,87 | OBSAZENO |
| 1.55 | 5,24 | OBSAZENO |
| 1.56 | 3,5 | OBSAZENO |
| 1.57 | 1,08 | OBSAZENO |
| 1.58 | 4,7 | OBSAZENO |
| 1.59 | 2,18 | OBSAZENO |
| 1.60 | 2,5 | OBSAZENO |
| 1.61 | 113,79 | OBSAZENO |
| 1.62 | 20,16 | OBSAZENO |
| 1.63 | 14,87 | OBSAZENO |
| 1.64 | 5,99 | OBSAZENO |
| 1,65 | 1,02 | OBSAZENO |
| 1,66 | 2,95 | OBSAZENO |
| 1,67 | 4,7 | OBSAZENO |
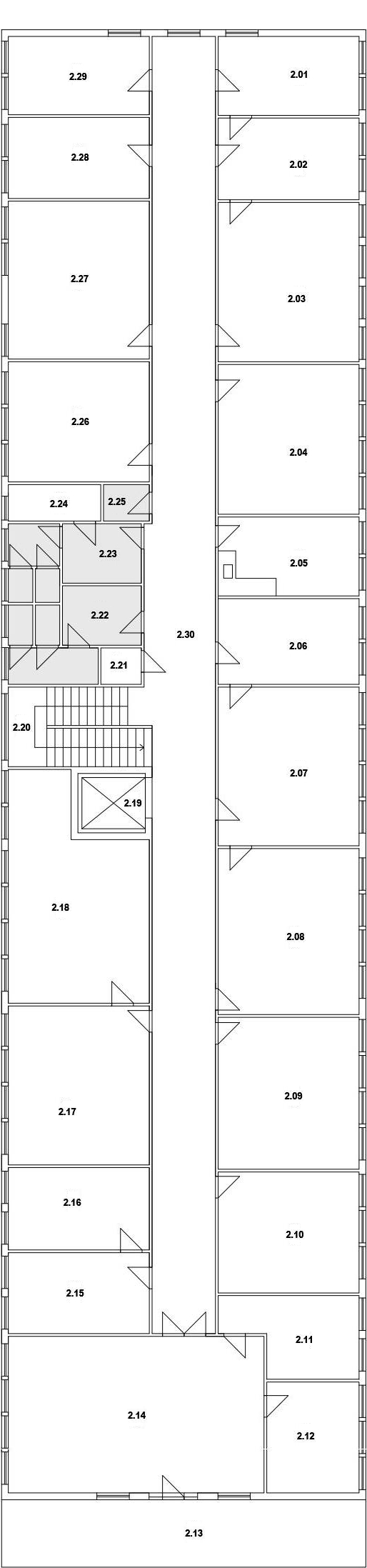
| Č. | PROSTOR | m2 | PODLAHA | DOSTUPNOST |
|---|---|---|---|---|
| 2.01 | KANCELÁŘ | 15,28 | Kobercová krytina | OBSAZENO |
| 2.02 | KANCELÁŘ | 15,80 | Kobercová krytina | OBSAZENO |
| 2.04 | KANCELÁŘ | 29,00 | Kobercová krytina | OBSAZENO |
| 2.05 | KUCHYŇKA | 15,28 | PVC | VEŘEJNÉ |
| 2.06 | KANCELÁŘ | 16,59 | Kobercová krytin | OBSAZENO |
| 2.07 | KANCELÁŘ | 30,72 | Kobercová krytina | OBSAZENO |
| 2.08 | KANCELÁŘ | 32,13 | Kobercová krytina | OBSAZENO |
| 2.09 | KANCELÁŘ | 29,42 | Kobercová krytina | OBSAZENO |
| 2.10 | KANCELÁŘ | 23,39 | Kobercová krytina | OBSAZENO |
| 2.11 | ROZVODNA IT | 13,17 | PVC | OBSAZENO |
| 2.12 | KANCELÁŘ | 14,07 | Kobercová krytina | OBSAZENO |
| 2.13 | TERASA | 33,75 | Keramická dlažba | OBSAZENO |
| 2.14 | ZASEDACÍ MÍSTNOST | 54,96 | Keramická dlažba | OBSAZENO |
| 2.15 | KANCELÁŘ | 15,68 | Kobercová krytina | OBSAZENO |
| 2.16 | KANCELÁŘ | 15,94 | Kobercová krytina |
OBSAZENO |
| 2.17 | KANCELÁŘ | 30,78 | Kobercová krytina | OBSAZENO |
| 2.18 | KANCELÁŘ | 37,80 | Kobercová krytina | OBSAZENO |
| 2.19 | VÝTAH | |||
| 2.20 | SCHODIŠTĚ | 15,57 | Lité TERACO | VEŘEJNÉ |
| 2.21 | ELEKTROROZVODNA | 2,03 | PVC | VEŘEJNÉ |
| 2.22 | SOCIÁLNÍ ZAŘÍZENÍ MUŽI | 6,44 | Keramická dlažba | VEŘEJNÉ |
| PISOÁRY | 4,49 | Keramická dlažba | VEŘEJNÉ | |
| WC | 1,34 | Keramická dlažba | VEŘEJNÉ | |
| WC | 1,34 | Keramická dlažba | VEŘEJNÉ | |
| 2.23 | SOCIÁLNÍ ZAŘÍZENÍ ŽENY | 6,44 | Keramická dlažba | VEŘEJNÉ |
| PŘEDSÍŇ WC | 2,94 | Keramická dlažba | VEŘEJNÉ | |
| WC | 1,13 | Keramická dlažba | VEŘEJNÉ | |
| WC | 1,13 | Keramická dlažba | VEŘEJNÉ | |
| 2.24 | KOTELNA | 4,64 | Keramická dlažba | VEŘEJNÉ |
| 2.25 | VÝLEVKA | 2,30 | Keramická dlažba | VEŘEJNÉ |
| 2.26 | KANCELÁŘ | 20,56 | Kobercová krytina | OBSAZENO |
| 2.27 | KANCELÁŘ | 23,25 | Kobercová krytina | OBSAZENO |
| 2.28 | KANCELÁŘ | 15,68 | Kobercová krytina | OBSAZENO |
| 2.29 | KANCELÁŘ | 15,15 | Kobercová krytina | K PRONÁJMU |
| 2.30 | CHODBA | 114,71 | Keramická dlažba | VEŘEJNÉ |
| Č. | PROSTOR | m2 | PODLAHA | DOSTUPNOST |
|---|---|---|---|---|
| 3.01 | KANCELÁŘ | 31,35 | Kobercová krytina | OBSAZENO |
| 3.02 | KANCELÁŘ | 30,65 | Kobercová krytina | OBSAZENO |
| 3.03 | KANCELÁŘ | 29,24 | Kobercová krytina | OBSAZENO |
| 3.04 | KUCHYŇKA | 16,07 | PVC | VEŘEJNÉ |
| 3.05 | KANCELÁŘ | 32,35 | Kobercová krytina | OBSAZENO |
| 3.051 | KANCELÁŘ | 14,6 | Kobercová krytina | OBSAZENO |
| 3.06 | KANCELÁŘ | 14,59 | Kobercová krytina | OBSAZENO |
| 3.07 | KANCELÁŘ | 14,6 | Kobercová krytina | OBSAZENO |
| 3.08 | KANCELÁŘ | 29,26 | Kobercová krytina | OBSAZENO |
| 3.09 | KANCELÁŘ | 30,78 | Kobercová krytina | OBSAZENO |
| 3.10 | KANCELÁŘ | 31,35 | Kobercová krytina | OBSAZENO |
| 3.11 | KANCELÁŘ | 9,73 | Kobercová krytina | OBSAZENO |
| 3.12 | KANCELÁŘ | 14,63 | Kobercová krytina | OBSAZENO |
| 3.13 | KANCELÁŘ | 30,83 | Kobercová krytina | OBSAZENO |
| 3.14 | KANCELÁŘ | 15,88 | Kobercová krytina | OBSAZENO |
| 3.15 | KANCELÁŘ | 30,83 | Kobercová krytina | OBSAZENO |
| 3.16 | KANCELÁŘ | 38,23 | Kobercová krytina | OBSAZENO |
| 3.17 | VÝTAH | |||
| 3.18 | SCHODIŠTĚ | 15,57 | Lité TERACO | VEŘEJNÉ |
| 3.18 | SCHODIŠTĚ | 15,57 | Lité TERACO | VEŘEJNÉ |
| 3.19 | ELEKTROROZVODNA | 2,03 | PVC | VEŘEJNÉ |
| 3.20 | SOCIÁLNÍ ZAŘÍZENÍ MUŽI | 6,44 | Keramická dlažba | VEŘEJNÉ |
| PISOÁRY | 4,49 | Keramická dlažba | VEŘEJNÉ | |
| WC | 1,34 | Keramická dlažba | VEŘEJNÉ | |
| WC | 1,34 | Keramická dlažba | VEŘEJNÉ | |
| 3.21 | SOCIÁLNÍ ZAŘÍZENÍ ŽENY | 6,44 | Keramická dlažba | VEŘEJNÉ |
| PŘEDSÍŇ WC | 2,94 | Keramická dlažba | VEŘEJNÉ | |
| WC | 1,13 | Keramická dlažba | VEŘEJNÉ | |
| WC | 1,13 | Keramická dlažba | VEŘEJNÉ | |
| 3.22 | VÝLEVKA | 2,30 | Keramická dlažba | VEŘEJNÉ |
| 3.23 | KOTELNA | 4,62 | Keramická dlažba | VEŘEJNÉ |
| 3.24 | KANCELÁŘ | 23,25 | Kobercová krytina | OBSAZENO |
| 3.25 | KANCELÁŘ | 30,72 | Kobercová krytina | OBSAZENO |
| 3.26 | KANCELÁŘ | 31,19 | Kobercová krytina | OBSAZENO |
| 3.27 | CHODBA | 118,61 | Keramická dlažba |
Nájemci
| Hallux s.r.o. | ProInvest s.r.o. | MARKO JH s.r.o. |
| PEPO s.r.o. | PRO INVEST REAL, s.r.o. | EntWave s.r.o. |
| Generali Česká pojišťovna a.s. | SINVET s.r.o. | |
| Mašek Elektro s.r.o. | Plášil s.r.o. | |
| Pavel Látal-servis chladírenských zařízení | Benefit Investment a.s. | |
| Veterinární klinika Piketa s.r.o. | IZOLACE 21, s.r.o. | |
| 1. KORONERSKÁ s.r.o. | DSG Metalic Trade s.r.o. | |
| 1. Písecká lesní a dřevařská, a.s. | Pavel Sassmann - Sano Plastic | |
| Ondřej Šťastka - reklamní služby | WESTCAM s.r.o. | |
| JUDr. Stanislav Vopelka | Studio JADE | |
| FABA CAPITAL a.s. | Damián Samuel Veselý | |
| Filament ID s.r.o. | Andrea TUNKLOVÁ | |
| Jana Chadimová - FOCENO S LÁSKOU | RADEK HAVLÍN – zeměměřická kancelář s.r.o. | |
| CoinFactory s.r.o. | Edofinance pan Rybčák |
Fotogalerie
Adresa & kontakt
Otín 286
Jindřichův Hradec 377 01
info@oac-jh.cz / tel. 777 700 310
Provozovatel
ProInvest s.r.o.
Kettnerova 2048/28
Praha 5 15500
IČ: 26022559
BORA – spol. s. r. o.
Sibiřská 390/III
Jindřichův Hradec 377 01
IČ: 42408652





